亚美体育在线登录-亚美(中国)

ELEVATOR DOOR SYSTEM电梯门系统

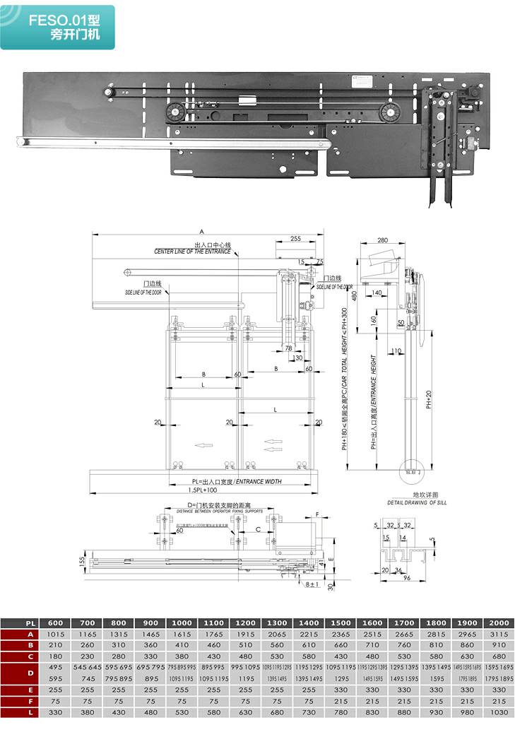
FESO.01型旁开门机